日期:
來源:zx123.cn收集編輯:admin
一個家居裝修的好不好,不僅僅是好看,更重要的還是內在,“外強中干”的房屋,我們可不能要。其中“內在”中最為重要的,大概就當屬水電裝修了。水電裝修的好壞直接關系到我們以后生活質量的好壞,下面我們通過一些家裝水電圖紙來詳細了解一些水電裝修中的重要事項。
先說水路走向,從這個衛生間水路走向示例我們可以看出,所有的水路都是走頂,并沒有走地,這也是水電裝修中的一個重要方面,水管盡量走頂不走地。如果走地,以后出現漏水的情況,我們也無法及時發現,除了給樓下的鄰居會造成不便,還會給我們自己的家庭造成不便。如果水管走地,還要承受瓷磚和人在上面的壓力,踩裂的可能性也很大。
左熱又冷,上熱夏冷,途中紅色走線是熱水,藍色走線是冷水。
安裝好的冷熱水管管頭的高度應在同一個水平面上,只有這樣以后安裝冷熱水開關才會美觀。
水管鋪設完成后,封槽前,要用管卡固定,水平管道管卡的間距,冷水管卡間距不大于60cm,熱水管卡間距不大于25cm。
水管材料:現在比較常見的家用給水管一般用PPR熱熔管,密封性好,施工快。但是一定要提醒工人施工時不要太著急,如果用力不穩,可能使管內堵塞,致使水流減小。
安裝完成后:水路完工后記得要用管堵把管頭堵好,以防掉進去雜物。完工后也應進行打壓測試,檢查水管有無滲漏情況。
家庭用電,常常涉及到的電路包括:強電(照明、電器用電)和弱電(電視、電話、音響、網絡等)。
走電之前,業主一定根據自身需求對電路定位好,開關、插座、燈等位置確定好,對于插座,小編的建議是越多好。
電路的布線通常采用線管暗埋的方式。管有冷彎管和PVC管兩種,冷彎管可以彎曲而不斷裂,是布線的很好的選擇,它的轉角是有弧度的,線可以隨時更換,而且不用開墻。
強弱電之間的距離要保持30-50公分左右,以防串線,更不可以在同一根穿管里面。途中紅色為強電、黑色為弱點。
所以管內電線都要是一個整體,不能有接頭,接頭只能出現在插座、開關等外露的地方。線管也盡量用整管。
電路走地:如果有線管在地面上,需要保護起來,防止踩裂。也要標注明確位置,方便以后檢修。
接線盒:當布線長度超過15米或中間有3個彎曲時,在中間應該加裝一個接線盒。因為拆裝電線時,太長或彎曲多了,線從穿線管過不去。
家裝水電圖紙看裝修:水路
以這張水路圖為例,我們可以看到很多信息。先說水路走向,從這個衛生間水路走向示例我們可以看出,所有的水路都是走頂,并沒有走地,這也是水電裝修中的一個重要方面,水管盡量走頂不走地。如果走地,以后出現漏水的情況,我們也無法及時發現,除了給樓下的鄰居會造成不便,還會給我們自己的家庭造成不便。如果水管走地,還要承受瓷磚和人在上面的壓力,踩裂的可能性也很大。
左熱又冷,上熱夏冷,途中紅色走線是熱水,藍色走線是冷水。
安裝好的冷熱水管管頭的高度應在同一個水平面上,只有這樣以后安裝冷熱水開關才會美觀。
水管鋪設完成后,封槽前,要用管卡固定,水平管道管卡的間距,冷水管卡間距不大于60cm,熱水管卡間距不大于25cm。
家裝水電圖紙看裝修:關于水路其他
水管的開槽:水管的開槽深度是要有一定的講究的,通常,冷水埋管后的批灰層要大于1cm,熱水埋管后的批灰層要大于1.5cm。水管材料:現在比較常見的家用給水管一般用PPR熱熔管,密封性好,施工快。但是一定要提醒工人施工時不要太著急,如果用力不穩,可能使管內堵塞,致使水流減小。
安裝完成后:水路完工后記得要用管堵把管頭堵好,以防掉進去雜物。完工后也應進行打壓測試,檢查水管有無滲漏情況。
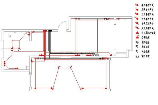
家裝水電圖紙看裝修:電路
電路的改造實在太重要了,一旦出現問題,用電用不了,這算是輕的,因為線路發生火災就不得了了。我們來看這個家用電路布置圖。家庭用電,常常涉及到的電路包括:強電(照明、電器用電)和弱電(電視、電話、音響、網絡等)。
走電之前,業主一定根據自身需求對電路定位好,開關、插座、燈等位置確定好,對于插座,小編的建議是越多好。
電路的布線通常采用線管暗埋的方式。管有冷彎管和PVC管兩種,冷彎管可以彎曲而不斷裂,是布線的很好的選擇,它的轉角是有弧度的,線可以隨時更換,而且不用開墻。
強弱電之間的距離要保持30-50公分左右,以防串線,更不可以在同一根穿管里面。途中紅色為強電、黑色為弱點。
所以管內電線都要是一個整體,不能有接頭,接頭只能出現在插座、開關等外露的地方。線管也盡量用整管。
家裝水電圖紙看裝修:關于電路其他
開槽:不論是電路還是水路,開槽都講究橫平豎直,但是墻上不允許開橫槽。電路走地:如果有線管在地面上,需要保護起來,防止踩裂。也要標注明確位置,方便以后檢修。
接線盒:當布線長度超過15米或中間有3個彎曲時,在中間應該加裝一個接線盒。因為拆裝電線時,太長或彎曲多了,線從穿線管過不去。
看過了上面的家裝水電圖紙,雖然我們每一個家庭的布線會有所不同,但是卻能夠進行借鑒。如果對于小編以上關于家裝水電圖紙的解釋有什么疑問,可以繼續關注裝修經驗欄目了解。